Makaslı Manuel Transpalet

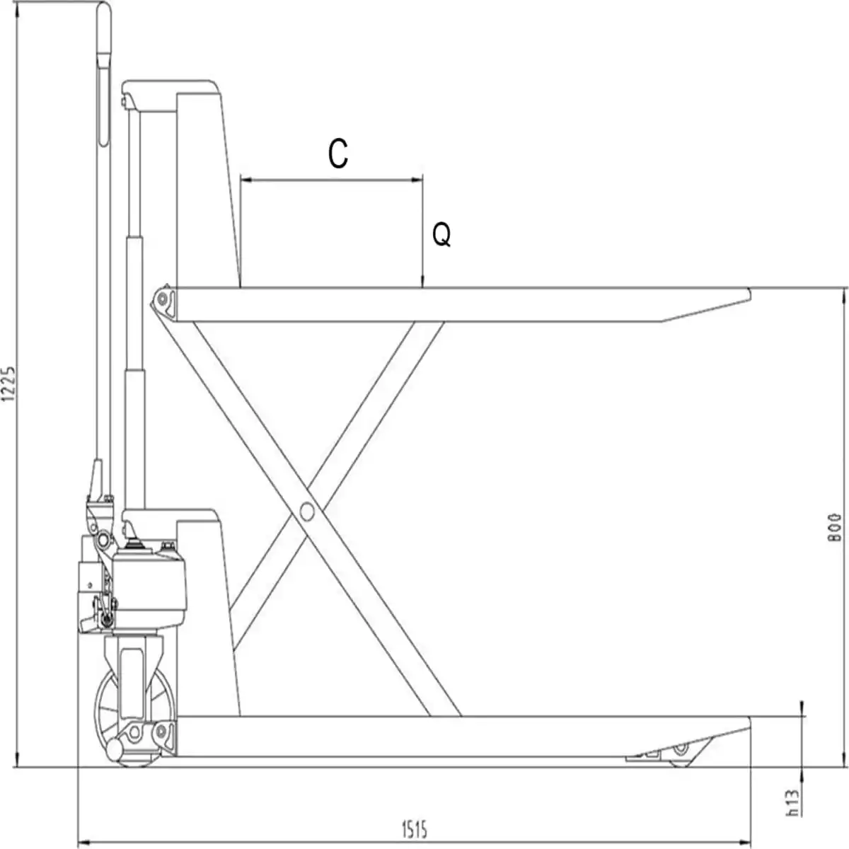
Bu makaslı yüksek kaldırmalı transpalet, euro paletlerin toplanması için mükemmeldir. Mal toplayıcıların her gün fiziksel olarak çok yorucu işler yapmaları gerekir. Bu genellikle dizlere veya özellikle vertebral disklere zarar verir. Manuel bir tarayıcı veya sevk aracı yardımıyla paletleri günlük olarak mallarla yüklemek, çok önemlidir ve bu sektör için bir yüksek transpalet gerektirir. Bu yüksek kaliteli makaslı kaldırma aracı, bu yorucu faaliyeti gerçekleştirirken gerçek bir destek sağlar. 800 mm’lik maksimum kaldırma yüksekliği sayesinde, transpalet dahil Euro paletler, toplayıcılar için ergonomik ve rahat bir çalışma yüksekliğine çok kolay ve basit bir şekilde yükseltilebilir. Belirli bir yükseklikten itibaren, makas denilen dengeleyiciler uzar ve makaslı forklifte gerekli dengeyi sağlar.

Makaslı manuel transpalet, malzeme taşıma ve istifleme işlemlerinde kullanılan bir ekipmandır. Bu transpaletler, genellikle küçük ve orta ölçekli depolarda, atölyelerde ve perakende mağazalarda kullanılmaktadır. Makaslı manuel transpaletler, operatörlerin yükleri kolayca kaldırıp taşımasını sağlar.

Açıklama

Makaslı manuel transpaletler, genellikle dayanıklı çelik konstrüksiyonlarından oluşur ve yük taşıma kapasiteleri belirli bir sınırlama içerir. Bu transpaletlerin maksimum taşıma kapasiteleri genellikle 2000 kg ile 2500 kg arasında değişir. Bununla birlikte, farklı modellerde farklı taşıma kapasiteleri bulunabilir.

Bu transpaletler, kullanımı kolay bir şekilde tasarlanmıştır. Ergonomik itme kolları ve kullanıcı dostu kontrolleri sayesinde operatörlerin yükleri rahatça taşıması sağlanır. Ayrıca, bazı modellerde ayarlanabilir çatal genişliği ve çatal yüksekliği gibi özellikler bulunabilir, böylece farklı boyutlardaki yükleri taşımak için uyum sağlanabilir.

Makaslı manuel transpaletler, hidrolik sistemlerle çalışır. Operatör, transpaletin hidrolik pompa mekanizmasını kullanarak yükü yükseltebilir ve indirebilir. Bu, yüklerin düzgün bir şekilde kaldırılmasını ve indirilmesini sağlar.

Güvenlik açısından, makaslı manuel transpaletler çeşitli önlemlerle donatılmıştır. Fren sistemi, yavaşlama mekanizmaları ve acil durum durakları gibi özellikler, güvenli bir kullanım sağlar. Operatörlerin yükleri güvenli bir şekilde taşımasını ve manevra yapmasını sağlamak için dikkatli olmaları önemlidir.

Sonuç olarak, makaslı manuel transpaletler, taşıma ve istifleme işlemlerinde pratik ve kullanışlı bir seçenektir. Operatörlere yükleri kolayca taşıma imkanı sağlar ve güvenlik önlemleriyle güvenli bir çalışma ortamı sunar.

Sık Sorulan Sorular

Makaslı Transpalet Fiyatları?

Makaslı transpaletler için en uygun fiyat ve en kaliteli garantili ürünler için firmamız ile irtibata geçiniz.

Makaslı Transpaletlerde Fren Var Mıdır?

Makaslı Transpaletler Kaç Cm Kaldırır?

Makaslı manuel transpalet nedir?

Makaslı manuel transpalet nasıl çalışır?

Makaslı manuel transpaletin avantajları nelerdir?

Makaslı manuel transpalet hangi alanlarda kullanılır?

Makaslı manuel transpaletin bakımı nasıl yapılır?