Gezer Mobil Portal Vinç

Portal vinçler, mobil taşınabilir vinçler olarak da adlandırılabilir. Kullanım yapısı itibari ile her ortamda çalışma özelliğine sahiptir. Sarhoş tekerleri sayesinde deponuzun ya da yükleme, çalışma alanınızın her tarafına ulaşabilirsiniz. Müşteri isteğine göre imalatı yapılan mobil portal vinçler, çok kullanışlı ve istenildiğinde sökülebilir yapıya sahiptir. Sistemle beraber ilgili bütün sertifikalar temin edilmektedir.

BİLGİ:  Portal vinç, boya hasarı ve çizikler nedeniyle oluşan zararlar, işlevselliğini etkilemez.

Açıklama

Pratik portal vinç 

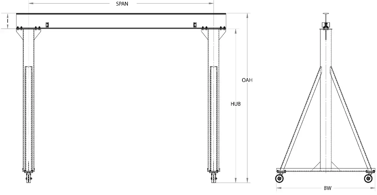
GüvenLift mobil portal vinçleri, ağırlığı 10.000 kg’a kadar olan uzun, ağır yüklerin kaldırılmasını kolaylaştırır. Entegre elektrikli zincirli vinç, basit bir düğmeye basarak malları bir yük kancası kullanarak saniyeler içinde alır ve bunları hem yatay hem de dikey olarak hareket ettirir. Kaldırma hızı vince ve kapasiteye göre değişmektedir. Dört döner tekerlek, portal vinci ihtiyaç duyulan her yere taşımanıza olanak tanır. 4 park freni kullanım sırasında gerekli dengeyi sağlar. Bu nedenle portal vinçlerimiz, atölyedeki onarım çalışmaları veya montaj veya depo teknolojisi için ideal bir yardımcıdır. Dayanıklı portal vinçlerimiz istenilen uzunlukta, yükseklikte ve kapasitede üretilmektedir.

Taşıması kolay, montajı kolay

A şeklindeki iki destek üzerindeki 4 döner tekerlek sayesinde portal vinç, kaldırılmış yük olsun veya olmasın depolarda veya yük iletim alanlarında çok hızlı ve kolay bir şekilde taşınabilir. Kaldırma sırasında ek güvenlik için döner tekerlekler, her birine takılı park freni kullanılarak sabitlenebilir. Bu tekerler, kaldırma ve indirme sırasında yanlışlıkla hareket etmesini engeller.

Taşıması kolay olduğu gibi, montajı da kolaydır. Bileşenlerin hafifliği, mobil portal vincin hızlı bir şekilde monte edilebileceği ve kullanılabileceği anlamına gelir. Montaj için gerekli tüm unsurlar satın alma fiyatına dahil edilebilir.

Not:  Güç kaynağı, endüstriyel bir elektrik prizi (380 V) gerektirir.

Lütfen cihazı çalıştırmadan önce, kullandığınız ülkedeki ilgili ulusal yönetmelikler hakkında bilgi edinin. Kullanıcı, ilk çalıştırmadan ve bu amaç için uygun personeli seçmekten sorumludur.

Gezer Mobil Portal Vinçler, taşınabilir bir yapıya sahip olan ve genellikle inşaat, liman, tersane gibi endüstrilerde kullanılan kaldırma ekipmanlarıdır. Bu vinçler, kendilerine özgü portal yapıları sayesinde stabil bir çalışma ortamı sunarlar.

Gezer Mobil Portal Vinçlerin özellikleri şunları içerebilir:

  1. Taşınabilirlik: Bu vinçler, kendilerine ait tekerlekli platform üzerine monte edilmiştir, bu da onları kolayca taşınabilir hale getirir. İş alanları arasında hızlı bir şekilde yer değiştirebilirler.
  2. Kaldırma Kapasitesi: Gezer mobil portal vinçler, farklı kaldırma kapasitelerine sahip olabilir. Bu kapasite genellikle ton cinsinden ifade edilir ve vinçin tasarımına ve modeline bağlı olarak değişir. İhtiyaçlara ve projenin gereksinimlerine bağlı olarak uygun kapasitede bir vinç seçilmelidir.
  3. İşlem Hızı: Gezer mobil portal vinçler, yüksek hızda kaldırma ve indirme işlemlerini gerçekleştirebilirler. Bu, verimli bir çalışma sağlar ve projelerin zamanında tamamlanmasına yardımcı olur.
  4. Kompakt Tasarım: Portal vinçler, kompakt bir yapıya sahip olabilirler. Bu, dar alanlarda çalışma imkanı sağlar ve vinçin kullanılacağı alana daha fazla erişim sağlar.
  5. Güvenlik Özellikleri: Gezer mobil portal vinçlerde genellikle güvenlik önlemleri bulunur. Bunlar, vinç operatörünün güvenliğini sağlamak, yükün güvenli bir şekilde kaldırılmasını sağlamak ve iş kazalarını önlemek amacıyla tasarlanmıştır. Örneğin, acil durumlarda kullanılabilen acil durdurma düğmeleri veya yükseklik sınırlayıcılar gibi güvenlik sistemleri bulunabilir.

Gezer mobil portal vinçler, yüksekliği ve taşıma kapasitesini değiştirebilen çok çeşitli modellerde bulunabilir. Proje ihtiyaçlarına uygun olan doğru vinç modelinin seçilmesi önemlidir. Ayrıca, vinç operatörünün eğitimli ve deneyimli olması, güvenli bir çalışma ortamının sağlanması için önemlidir.

Sonuç olarak, Gezer Mobil Portal Vinçler, taşınabilir ve stabil bir yapıya sahip olan kaldırma ekipmanlarıdır. İnşaat, liman ve tersane gibi endüstrilerde geniş bir kullanım alanına sahiptirler ve projelerde verimli ve güvenli bir kaldırma işlemi sağlarlar.

Sık Sorulan Sorular

Portal Vinç Sipariş Verirken Kedi Vinç Dahil midir?

Eğer kedi vinci istemiyorsanız almayabilirsiniz. Sadece şaseyi satın alabilirsiniz.

Portal Vinçler Hangi Renk Boyanıyor?

Portal Vinçlerin Yük Hesabı Nasıl Yapılır?